Проектирование конструктивных решений для [тип объекта] в [город] площадью [м²]. Выполнены расчеты несущих конструкций, разработан раздел КР и обеспечено сопровождение экспертизы. В результате подготовлена документация, успешно прошедшая экспертизу.
Тип объекта: Локация: Площадь: Этажность: Стадия проектирования: Статус проекта: Сроки проектирования:
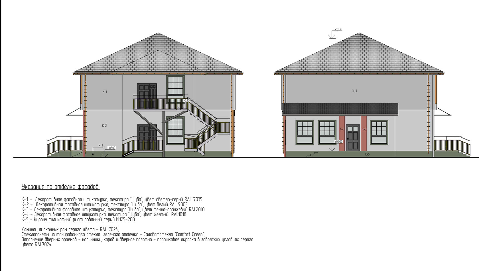
Жилой комплекс, Исянгулово
р.
р.
Адрес: ул. Промышленная 4/5 в с.Исянгулово МР Зианчуринский район РБ
Проектирование конструктивных решений для [тип объекта] в [город] площадью [м²]. Выполнены расчеты несущих конструкций, разработан раздел КР и обеспечено сопровождение экспертизы. В результате подготовлена документация, успешно прошедшая экспертизу.
Тип объекта: Локация: Площадь: Этажность: Стадия проектирования: Статус проекта: Сроки проектирования:
Гостинично-деловой комплекс
р.
р.
Проектирование конструктивных решений для [тип объекта] в [город] площадью [м²]. Выполнены расчеты несущих конструкций, разработан раздел КР и обеспечено сопровождение экспертизы. В результате подготовлена документация, успешно прошедшая экспертизу.
Тип объекта: Локация: Площадь: Этажность: Стадия проектирования: Статус проекта: Сроки проектирования:
Детский центр, Нагаево
р.
р.
Адрес: п. Нагаево, ул. Янтарная, Октябрьский район г. Уфа, Республика Башкортостан
Проектирование конструктивных решений для [тип объекта] в [город] площадью [м²]. Выполнены расчеты несущих конструкций, разработан раздел КР и обеспечено сопровождение экспертизы. В результате подготовлена документация, успешно прошедшая экспертизу.
Тип объекта: Локация: Площадь: Этажность: Стадия проектирования: Статус проекта: Сроки проектирования:
Капитальный ремонт общежития
р.
р.
Капитальный ремонт здания общежития Государственного автономного профессионального образовательного учреждения Свердловской области "Качканарского горно-промышленного колледжа", расположенного по адресу: Свердловская область, г. Качканар, ул. Гикалова д.9
Проектирование конструктивных решений для [тип объекта] в [город] площадью [м²]. Выполнены расчеты несущих конструкций, разработан раздел КР и обеспечено сопровождение экспертизы. В результате подготовлена документация, успешно прошедшая экспертизу.
Тип объекта: Локация: Площадь: Этажность: Стадия проектирования: Статус проекта: Сроки проектирования:
Досуговый центр на территории санатория "Ассы"
р.
р.
Проектирование конструктивных решений для [тип объекта] в [город] площадью [м²]. Выполнены расчеты несущих конструкций, разработан раздел КР и обеспечено сопровождение экспертизы. В результате подготовлена документация, успешно прошедшая экспертизу.
Тип объекта: Локация: Площадь: Этажность: Стадия проектирования: Статус проекта: Сроки проектирования:
Многоквартирный жилой дом, Октябрьский
р.
р.
Многоквартирный жилой дом по ул. Социалистическая в г. Октябрьский Республики Башкортостан
Проектирование конструктивных решений для [тип объекта] в [город] площадью [м²]. Выполнены расчеты несущих конструкций, разработан раздел КР и обеспечено сопровождение экспертизы. В результате подготовлена документация, успешно прошедшая экспертизу.
Тип объекта: Локация: Площадь: Этажность: Стадия проектирования: Статус проекта: Сроки проектирования:
Капитальный ремонт АБК, учебного корпуса и пристроя
р.
р.
АДРЕСУ: СВЕРДЛОВСКАЯ ОБЛАСТЬ, Г. КАЧКАНАР, МКР. 6 А, Д. 26
Проектирование конструктивных решений для [тип объекта] в [город] площадью [м²]. Выполнены расчеты несущих конструкций, разработан раздел КР и обеспечено сопровождение экспертизы. В результате подготовлена документация, успешно прошедшая экспертизу.
Тип объекта: Локация: Площадь: Этажность: Стадия проектирования: Статус проекта: Сроки проектирования:
Реализуем проект вашего объекта любой сложности
Опыт проектирования жилых, коммерческих и социальных объектов. Поможем пройти экспертизу и оптимизировать решения.